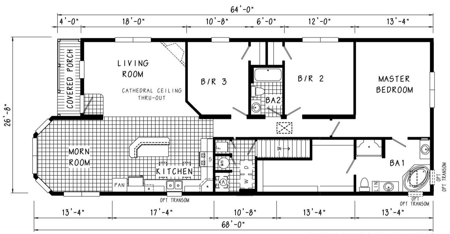
The Linden

26-8 x 68/64 - 1,631 Sq. Ft.
3 Bedroom, 2 Bath

View - Linden Photo Tour


View - Floor Plan
LindenFloorPlanSmallIcon01

Linden Preview
Cape Patriot Preview

Photos Coming Soon!!
Call Us For Immediate Details and a Personalized Tour Of This Home
(717) 442 - 8868

Model Home Photo Tours

Coastal Projects

Coastal Modular Home Project
Coastal Modular Home Project
All-StarTwoStoryOverviewSmall
Coastal Two Story Modular Home Project
Coastal Cape Cod Modular Home Project
Coastal Modular Home Project

Video Tours

Header05