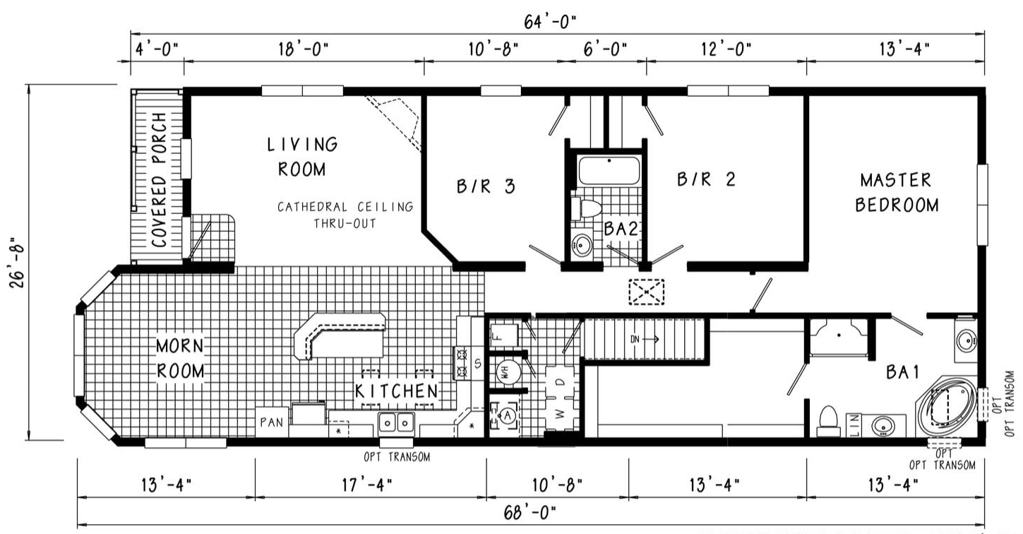
Linden
Ranch Style Modular
End Elevation
Model: Linden
Bedrooms: 3
Baths: 2
Sq. Ft.: 1,631
Complete Linden PDF Brochure
The Linden Coastal Modular Home Floor Plan
Home
Floor Plans
Photo Tours
Modular Advantage
Why Patriot?
Brochure Request
Contact Us
Home
Floor Plans
Pennwest Coastal
Restore The Shore Collection By Ritz-Craft Custom Homes
Coastal Lifestyle Collection By Ritz-Craft Custom Homes
Lake And Lodge Collection By Ritz-Craft Custom Homes
Custom Coastal
The Linden
Photo Tour
Eagle River Coastal
Ritz-Craft Custom Modulars
The Aurora Photo Tour
The Anniversary III Photo Tour
The Advantage Photo Tour
Photo Tours
Modular Advantage
Pennwest Standard Features - Standard Series
Pennwest Standard Features - Coastal Shore Collection
Pennwest Built Inside
Pennwest Superior Custom Cabinets
Why Patriot?
Brochure Request
Contact Us
Contact Information
Contact Us - Google Maps
Contact Us - Bing Maps
Contact Us Generalized Directions